1

projekt

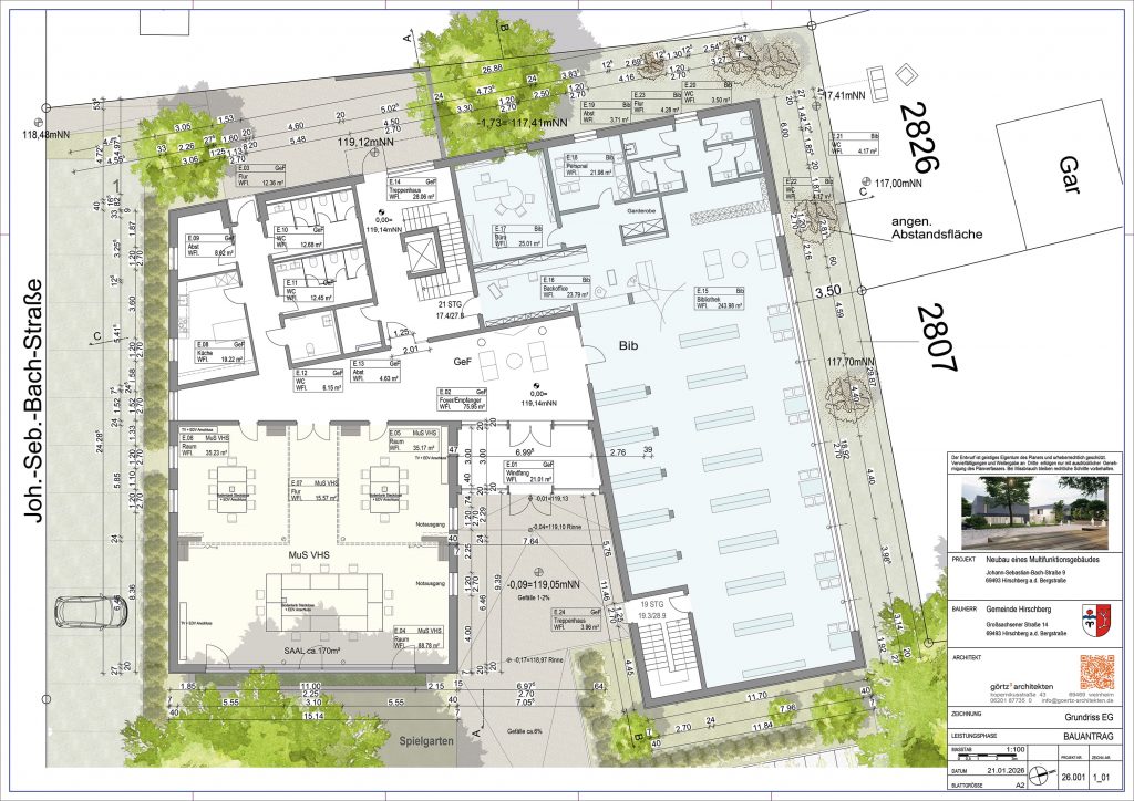
Multifunktionsgebäude,
Areal der Martin-Stöhr-Grundschule

jahr der fertigstellung: 2025

die flexiblen grundrisse ermöglichen synergieeffekte im alltag und bieten raum für interdisziplinäre veranstaltungen.

Das neue Multifunktionsgebäude auf dem Areal der Martin-Stöhr-Grundschule wird ein zentrales Bauprojekt der Gemeinde Hirschberg: als moderner Begegnungsort vereint es die Volkshochschule, die Musikschule, die Zentralbibliothek sowie die Grundschulbetreuung unter einem Dach. Die flexiblen Grundrisse ermöglichen Synergieeffekte im Alltag und bieten Raum für interdisziplinäre Veranstaltungen mit Bürgern und lokalen Institutionen.

3

fotos
fotos